Search
10
  • Property Type
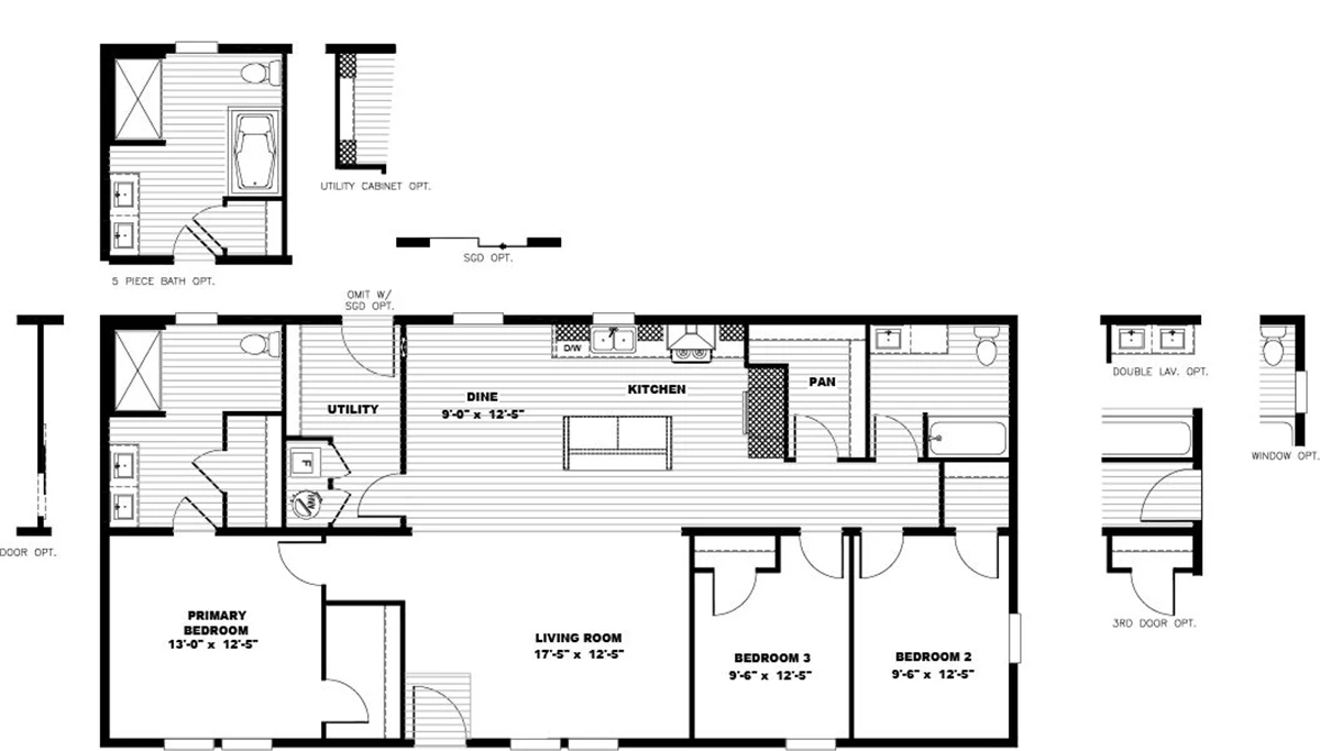
  • Clayton Tempo, Double Section
  • 3
  • Bedrooms
  • 2
  • Bathrooms
  • 1475 Sq Ft
  • Area Size
Clayton Tempo – Rockwell – Lean On Me

Description

Details

Updated on April 28, 2026 at 4:04 pm
  • Property Size 1475 Sq Ft
  • Bedrooms 3
  • Bathrooms 2
  • Property Type Clayton Tempo, Double Section

Additional details

  • Brand Clayton Tempo

Floor Plans

Compare listings

Compare