Search
12
  • Property Type
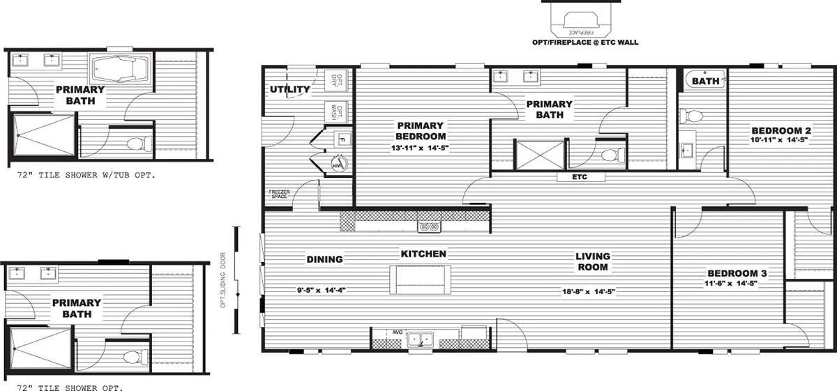
  • Clayton Oxford, Double Section
  • 3
  • Bedrooms
  • 2
  • Bathrooms
  • 1800 Sq Ft
  • Area Size
Clayton Oxford – Ultra Flex Jewel 32×60

Description

Details

Updated on April 22, 2026 at 9:19 am
  • Property Size 1800 Sq Ft
  • Bedrooms 3
  • Bathrooms 2
  • Property Type Clayton Oxford, Double Section

Additional details

  • Brand Clayton Oxford

Floor Plans

Compare listings

Compare