Search
8
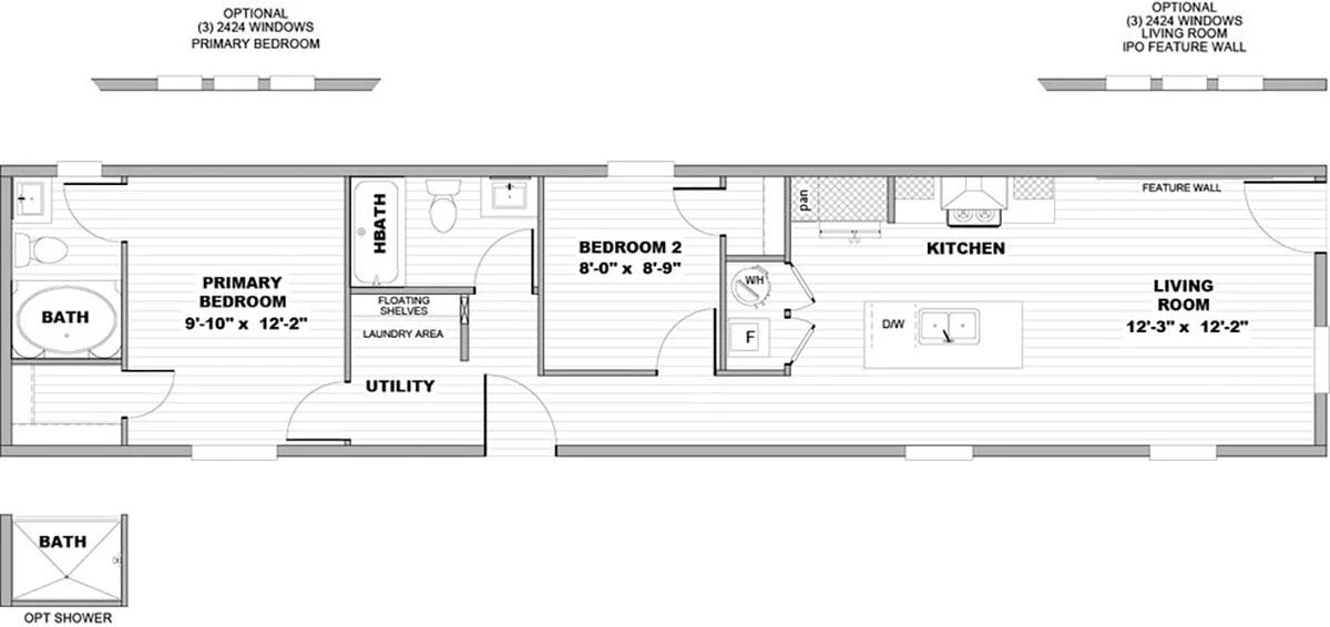
  • Property Type
  • Clayton Epic, Single Section
  • 2
  • Bedrooms
  • 2
  • Bathrooms
  • 820 Sq Ft
  • Area Size
Clayton Epic – Journey – Cortes

Description

Details

Updated on April 23, 2026 at 7:24 am
  • Property Size 820 Sq Ft
  • Bedrooms 2
  • Bathrooms 2
  • Property Type Clayton Epic, Single Section

Additional details

  • Brand Clayton Epic

Floor Plans

Compare listings

Compare