Search
17
  • Property Type
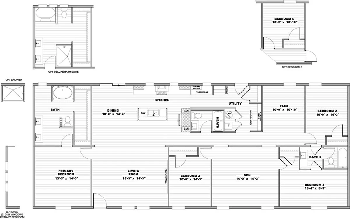
  • Clayton Epic, Double Section
  • 4
  • Bedrooms
  • 3
  • Bathrooms
  • 2280 Sq Ft
  • Area Size
Clayton Epic – Experience – Summit

Description

Details

Updated on April 23, 2026 at 7:12 am
  • Property Size 2280 Sq Ft
  • Bedrooms 4
  • Bathrooms 3
  • Property Type Clayton Epic, Double Section

Additional details

  • Brand Clayton Epic

Floor Plans

Compare listings

Compare