Search
16
  • Property Type
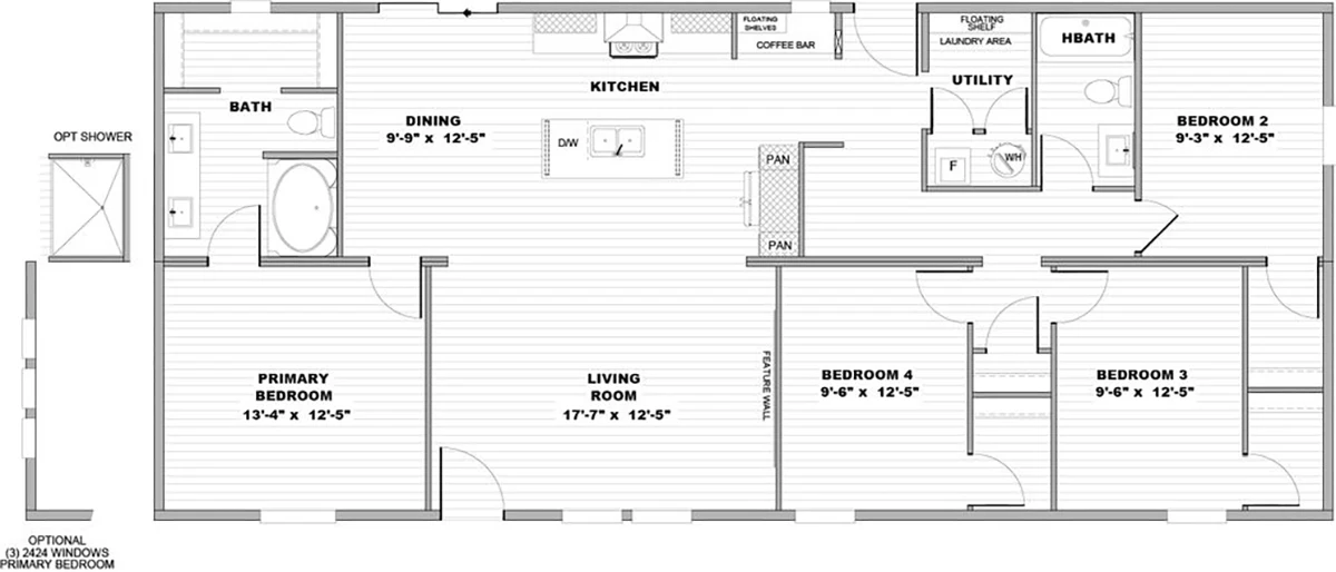
  • Clayton Epic, Single Section
  • 4
  • Bedrooms
  • 4
  • Bathrooms
  • 1580 Sq Ft
  • Area Size
Clayton Epic – Experience – Expedition

Description

Details

Updated on April 23, 2026 at 7:01 am
  • Property Size 1580 Sq Ft
  • Bedrooms 4
  • Bathrooms 4
  • Property Type Clayton Epic, Single Section

Additional details

  • Brand Clayton Epic

Floor Plans

Compare listings

Compare