Search
10
  • Property Type
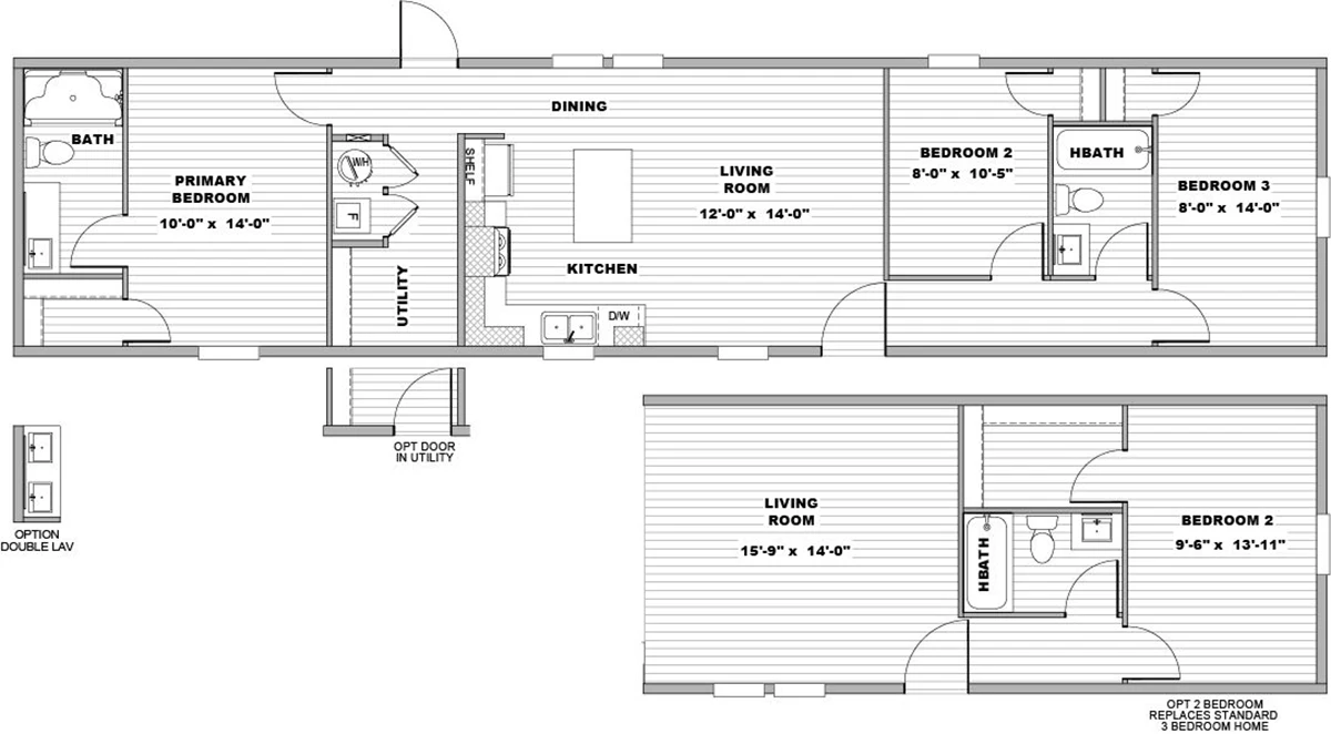
  • Clayton Oxford, Single Section
  • 3
  • Bedrooms
  • 2
  • Bathrooms
  • 990 Sq Ft
  • Area Size
Clayton Oxford – Horizon – Beacon

Description

Details

Updated on April 23, 2026 at 8:38 am
  • Property Size 990 Sq Ft
  • Bedrooms 3
  • Bathrooms 2
  • Property Type Clayton Oxford, Single Section

Additional details

  • Brand Clayton Oxford

Floor Plans

Compare listings

Compare